Filtry

Wybrane filtry:

0

Wyniki dla tagu:

Naramowice

Znaleziono 15 wyników

Aktualności

Zdjęcie oświetlonej ulicy nocą

Bezpieczniej na Naramowicach

16.01.2026
Na ul. Rubież powstało oświetlenie uliczne. To kolejna ulica w tym rejonie, na której poprawiła się widoczność po zmroku. 
Czytaj artykuł
Zdjęcie oświetlonej ulicy nocą

Bezpieczniej na Naramowicach

16.01.2026
Na ul. Rubież powstało oświetlenie uliczne. To kolejna ulica w tym rejonie, na której poprawiła się widoczność po zmroku. 
Czytaj artykuł
fragmnety mapy lotniczej z teren łąk rzeki z zakolem i zabudowaniami więcej w treści artykułu

Chronić łąki nadwarciańskie

14.10.2025
Radny Adam Szabelski wystosował interpelację w sprawie ochrony łąk nadwarciańskich na obszarze Naramowic.
Czytaj artykuł
mapa lotnicza z przybliżonym obszarem będącym przedmiotem interpelacji która jest opisana w treści artykułu

W sprawie inwestycji drogowej w Naramowicach

22.09.2025
Radni Małgorzata Dudzic-Biskupska i Marcin Ruta złożyli wspólną interpelację w sprawie budowy ul. Bratumiły wraz z częścią ul. Bożymira.
Czytaj artykuł
Nowa nawierzchnia, nowe możliwości - boisko na Naramowicach po remoncie

Zmodernizowane boisko na Jasnej Roli gotowe do gry

28.07.2025
Mieszkańcy Naramowic oraz osiedla Władysława Łokietka mogą już cieszyć się zmodernizowanym boiskiem do koszykówki przy ul. Jasna Rola. Inwestycja...
Czytaj artykuł
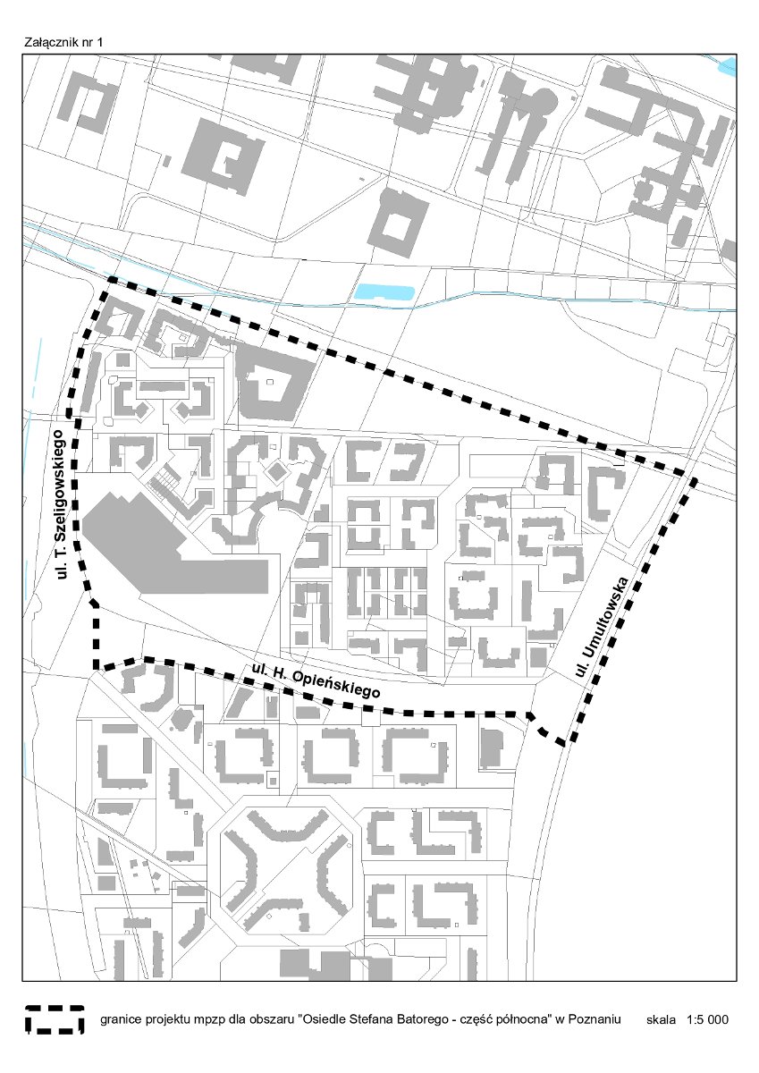
Fragment planu Poznania - obrys budynków i ulic znajdujących się w pobliżu obszaru "Osiedle Stefana Batorego - część północna" w Poznaniu

Termin wydłużony: MPZP dla obszaru "Osiedle Stefana Batorego - część północna" w Poznaniu, II...

16.04.2025
Termin II etapu konsultacji społecznych  dotyczących projektu miejscowego planu zagospodarowania przestrzennego dla obszaru "Osiedle Stefana...
Czytaj artykuł
Grafika. Propozycja zagospodarowania terenu wg projektu mpzp.

Osiedle Stefana Batorego - część północna - dodatkowe spotkanie

28.03.2025
W dniu 23 kwietnia 2025r., o godzinie 18:00 w ramach drugiego etapu konsultacji odbędzie się dodatkowe, otwarte spotkanie konsultacyjne dotyczące...
Czytaj artykuł
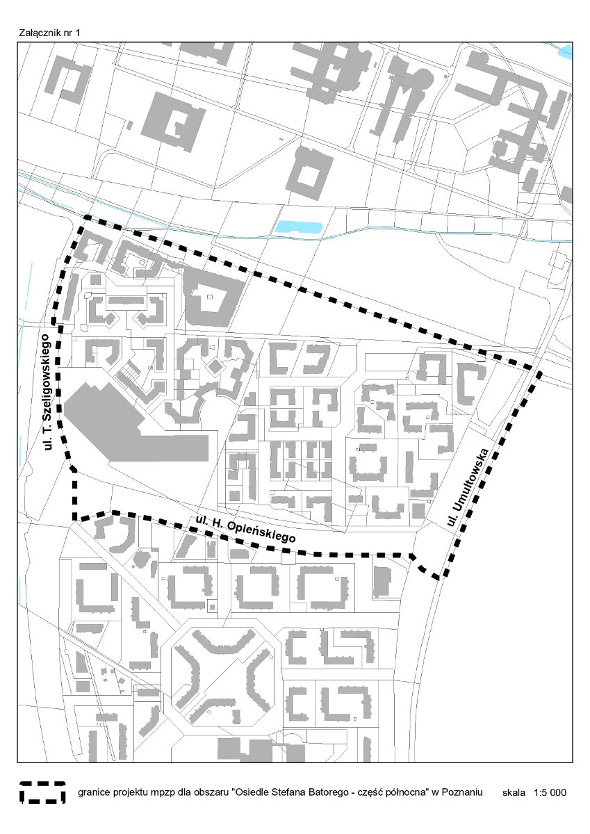
Fragment planu Poznania - obrys budynków i ulic znajdujących się w pobliżu osiedla Stefana Batorego z zaznaczonymi granicami projektu mpzp w rejonie "Osiedle Stefana Batorego - część północna" w Poznaniu.

MPZP dla obszaru "Osiedle Stefana Batorego - część północna" w Poznaniu, II etap, od 3 do 18...

27.03.2025
Serdecznie zapraszamy na  II etap konsultacji społecznych  dotyczących projektu miejscowego planu zagospodarowania przestrzennego dla...
Czytaj artykuł
Wyświetlono 1-8 z 15 wyników